00 48 790 388 558
Home > Products > Parkour & Free Running > Parkour wood and steel > Module 5
Back

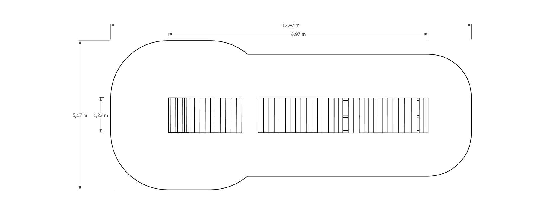
Module 5

5
Ask about price

Also check

1Move
woj. pomorskie

ul. Morelowa 5/30
Gdańsk 80-174

NIP: 5833168039
REGON: 222099133
KRS: 0000512494

Mariusz Sucharzewski

+48 790 388 558

Kamil Sokołowski

+48 733 221 221

1@1move.pl

www.1move.pl

full contact

Contact form